Everyone—regardless of physical ability—should be able to enjoy time at the cottage. To promote cottaging for everyone, we have rounded up five Ontario cottage rentals that are accessible for different abilities. Also, check out these design features you can add to your own cottage to make it more accessible.
Still searching for your next vacation rental? Visit our rental hub powered by VRBO.
Photo by Natasha Tolub/VRBO.com
Kawartha Lakes Idyllic Escape
Photo by Natasha Tolub/VRBO.com
Kawartha Lakes Idyllic Escape
Photo by Natasha Tolub/VRBO.com
Kawartha Lakes Idyllic Escape
Photo by Natasha Tolub/VRBO.com
Kawartha Lakes Idyllic Escape
Photo by Natasha Tolub/VRBO.com
Kawartha Lakes Idyllic Escape
Located just under two hours from downtown Toronto, this cottage, located on Head Lake, is suited for people with limited mobility. While it is not fully accessible for a person in a wheelchair, there is a flat path from the driveway to the front door.
Features:
- All door handles have levers
- Bathrooms and bedrooms are large enough to accommodate a person who uses a walker
- Stone path has railings on either side down to the lake
Location: Head Lake
Price: Averages $374 per night
Sleeps: 6
Bedrooms: 3
Notes:
- Waterfront
- Wireless internet
- Heating
- Fire pit
- Fitness room and equipment
- Canoe, kayak, and standup paddle boards
- Parking
Photo by Ahmic Lake Resort/VRBO.com
Ahmic Lake Resort’s Romantic Getaway
Photo by Ahmic Lake Resort/VRBO.com
Ahmic Lake Resort’s Romantic Getaway
Photo by Ahmic Lake Resort/VRBO.com
Ahmic Lake Resort’s Romantic Getaway
Photo by Ahmic Lake Resort/VRBO.com
Ahmic Lake Resort’s Romantic Getaway
Ahmic Lake Resort offers two one-bedroom wheelchair-accessible cottages. Both the Blue Jay and Loon cottages are equipped with ramps to the entrance, and a three-piece, wheelchair-accessible bathroom with a large shower and grab rails. The doorways are large enough for someone who uses a wheelchair to pass through.
The Blue Jay cottage offers stunning views of the Almaguin Highlands and the Loon cottage has an extra special feature—a canopy hot tub. The resort is home to the Swiss Country House Restaurant, a wheelchair-accessible dining option. It has a ramp at the entrance, an automatic door, and an indoor ramp that leads to tables with a lake view.
Location: Almaguin Highlands
Price: Averages $210 per night
Sleeps: 2
Bedrooms: 1
Notes:
- Lake views
- Hot tub
- Pull-out couch (for additional guests)
- Children allowed
- Pets allowed
- Internet
- Kayak, canoe, and boats available
Photo by Blanca Bean/VRBO.com
Family-friendly and wheelchair accessible cottage
Photo by Blanca Bean/VRBO.com
Family-friendly and wheelchair accessible cottage
Photo by Blanca Bean/VRBO.com
Family-friendly and wheelchair accessible cottage
Photo by Blanca Bean/VRBO.com
Family-friendly and wheelchair accessible cottage
Photo by Blanca Bean/VRBO.com
Family-friendly and wheelchair accessible cottage
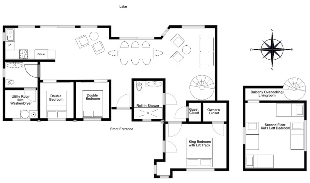
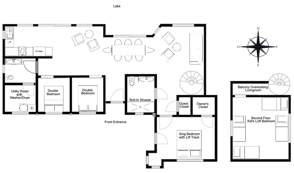
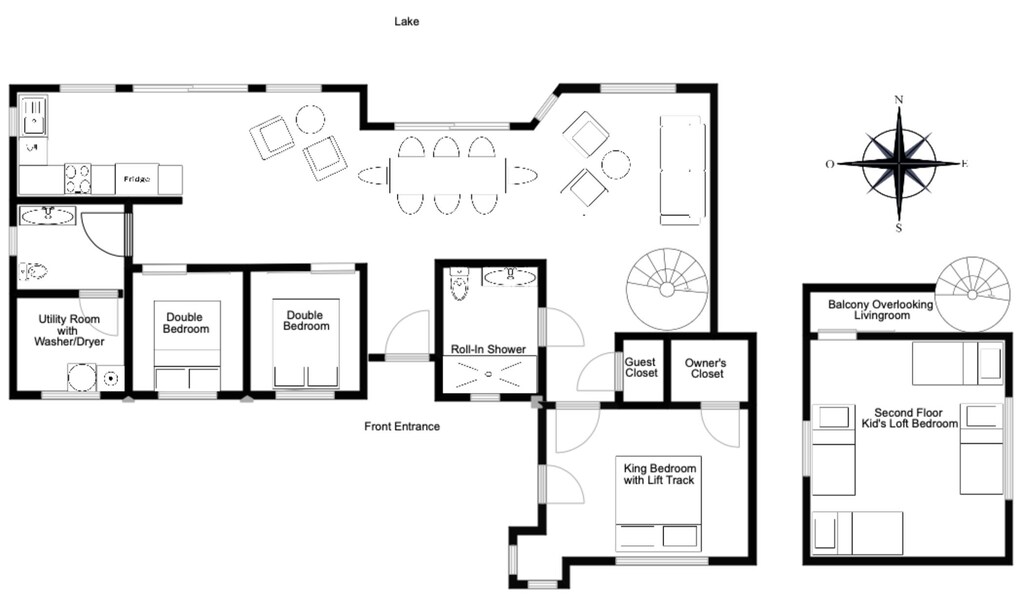
Located on a small picturesque lake in Westport, this cottage has been purpose-built to be accessible for someone who uses a wheelchair. It is currently undergoing renovations but will be available to rent in August of this year.
Features:
- Ramp to the front door, deck, and lake.
- Flat surface by firepit and waterfront
- Elevated electrical outlets
- Floors are free of thresholds
- All doors are 36” in width, and are equipped with door handles.
- The main bathroom includes a roll-in shower, wall-mounted sink, grab bars, and shower chair.
- The kitchen has a roll-under kitchen island, drawers with handles, and an ADA-compliant basin.
- Life track to the master bedroom
- WaterWheels wheelchair and path to the shoreline (coming next year)
Location: Tay Valley, Ont.
Price: Averages $883 per night
Sleeps: 10
Bedrooms: 4
Notes:
- Accessible for someone who uses a wheelchair
- High chair
- Lakeview
- Fire pit
- Internet
- Parking
This charming four-season, log cabin is accessible for someone who uses a wheelchair or for strollers on both the main and lower floors. The main floor is accessible by a ramp and includes a wide door that leads directly into the main living and dining rooms. The upstairs bedrooms and bathrooms are not wheelchair-accessible. The lower level has three bedrooms and a bathroom with a large shower, equipped with a seat and railing, and can only be accessed through the outside patio.
Location: Grand Bend, Ont.
Price: Averages $395 per night
Sleeps: 10
Bedrooms: 5
Notes:
- Wireless internet
- Heating
- Air conditioning
- Fireplace
- Pets allowed
- Parking available
- Fully-equipped kitchen
This four-season, waterfront condo is on the third floor and can be accessed by elevator. There are two bedrooms on the main floor and a third bedroom that can only be accessed by stairs. For those looking to explore Blue Mountain, Collingwood’s historic downtown and harbour, and Wasaga Beach, the Town of Collingwood has wheelchair-accessible buses with routes to the surrounding areas.
Location: Collingwood
Price: Averages $125 per night
Sleeps: 8
Bedrooms: 3
Notes:
- Wireless internet
- Air conditioning
- Washer and dryer
- Fireplace
- Swimming pool
- Patio
- Gas barbecue
- No pets allowed
Related Story Design considerations for accessibility at the cottage